Message
アルシプランは、注文住宅から
マンション・オフィスや病院などの施設設計まで
免震構造の建物の設計をする建築デザイン事務所です。
設計エリアは首都圏に留まらず日本全国どこでも可能です。
CONCEPT
免震構造を用いて
美しいデザイン
安心安全な住まいを。
私達アルシプランは免震構造を用いて美しいデザインと安心安全な住まいを未来へ残す建物の経験の実績で日本の街並みを豊かにしていきたいと考えています。
ABOUT
免震とは?
地震力をしなやかに逃がす。
建物への負荷と損傷を軽減させる構法。
世界有数の地震大国である、わが国日本。幾度の大きな地震を経験する度に、生命と財産を守るため、より強固な構造体へ進化してきました。それゆえに海外の建物に比べ、日本の建物の構造体(柱・梁)は大きく、太く頑丈に造ることが求められます。免震構造とはまさに先述の言葉の様に大規模な地震力に対して剛な構造体で耐えるのではなく、地震力をしなやかに逃がす層をつくる構造により建物への負荷と損傷を軽減させる構法です。
PREDICT
今、予想されている大地震とは?
東 海  東南海南海トラフ地震
政府の地震調査委員会は南海トラフ巨大地震の発生確率を「30年以内に70~80%」と発表しているが、京都大学名誉教授の鎌田浩毅氏(火山学)はより具体的に「2035±5年で必ず起こる」と指摘しています。
30年以内にM8〜M9クラスの大規模地震が発生する確率
フィリピンプレート
地震の発生予測では2つのことを発表します。 1つは今から何パーセントの確率で起きるのかです。巨大地震はプレートと呼ばれる2枚の厚い岩板の運動によって起きます。プレートが動くと他のプレートとの境目に、エネルギーが蓄積されます。この蓄積が限界に達し、非常に短い時間で放出されると巨大地震となります。プレートが動く速さはほぼ一定なので、巨大地震は周期的に起きる傾向があります。この周期性を利用して、発生確率を算出するのです。
鎌田浩毅 『首都直下地震と南海トラフ』(MdN新書)抜粋の一部を引用
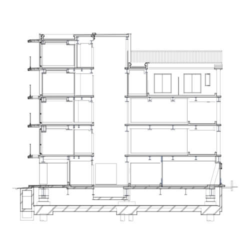
POSSIBILITY
免震構造の可能性
免震構造の可能性
免震装置について
大空間
ゆとりある大空間を実現
免震構造を採用する事により建物構造体をスリムに出来るだけでなく空間を大きく造る事が可能になり、大空間や大開口によりダイナミックな空間デザインをいたします。
ゆとりある大空間を実現
BCP対策
事業継続計画(BCP)で、
災害時の被害を減らす。
緊急事態に遭遇することを前提にした対策で、事業資産の損害を最小限にとどめつつ、中核となる事業の継続あるいは早期復旧を可能とするために、平常時に行うべき活動や緊急時における事業継続のための方法、手段などを取り決めておく計画策定が重要です。
緊急時に活動ができなくなったり事業縮小を余儀なくされないためには、平常時からBCPを周到に準備しておき、緊急時に事業の継続・早期復旧を図ることが重要となります。
  •  ・事業資産の損害を最小限にとどめる
  •  ・緊急時に事業の継続・早期復旧を図ることが重要
  •  ・従業員や来客者の命を守る
この観点から事前にできること、また大きな効果を発揮することとしましては何といっても建物を免震化にすることです。損害を最小限にすることができ、地域の復興の拠点にもなりえることで、企業・社会に貢献ができます。社員や来客者の命・財産を守ることが企業としての役割です。
事業継続計画(BCP)で、災害時の被害を減らす。
INTERVIEW
ARCHI PLAN PRESENTS : Expert dialogue series
April 2022. vol.01
大地変動の時代のはじまり。 巨大地震はいつどこで?
日本の地球科学者。
京都大学名誉教授、同大特任教授。専門は火山学、地球変動学、科学教育、アウトリーチ。
Q.

まずは巨大地震の予知、予測の現状について
教えていただけますでしょうか?

A.

日本は今、大地変動の時代に入っています。
そもそもの発端は2011年に起こった東日本大震災です。
マグニチュード(以下M)9.0の大地震で
東北の沖合、縦 500km、横200km にも及ぶ岩盤が割れました。
同等の地震は 1000 年周期で起こっています。
直近では西暦869年に平安時代の貞観地震がありました。
城の石垣が崩れ、内陸部まで浸水し
野原が大海原になるような津波に襲われたとの記録があります。

アルシプラン㈱
ー級建築士事務所代表取締役
一級建築士・免震部建築施工管理技術者・免振建物点検技術者 。
REQUEST
お問い合わせ・資料請求
お問い合わせは、下記フォームに入力して送信してください。
*入力必須項目です。

Leave this empty:

お問い合わせの目的
※複数選択可

貴社名

お名前

メールアドレス

都道府県

その他
お問合せ方法
リセット